
Be the envy of the neighborhood with a home that takes the prize! Between two MBA Parade of Homes appearances, The Harper has been awarded Best Overall Home – Silver (2021), Best Kitchen (2021), Best Family Living Area (2021), and Best Interior Decorating (2019). This 2,352-square foot split bedroom ranch provides everything your family needs to live life to its fullest. This home was so popular when it debuted at the 2019 Parade that we brought it back for 2021–with a few updates that today’s homebuyers will love!
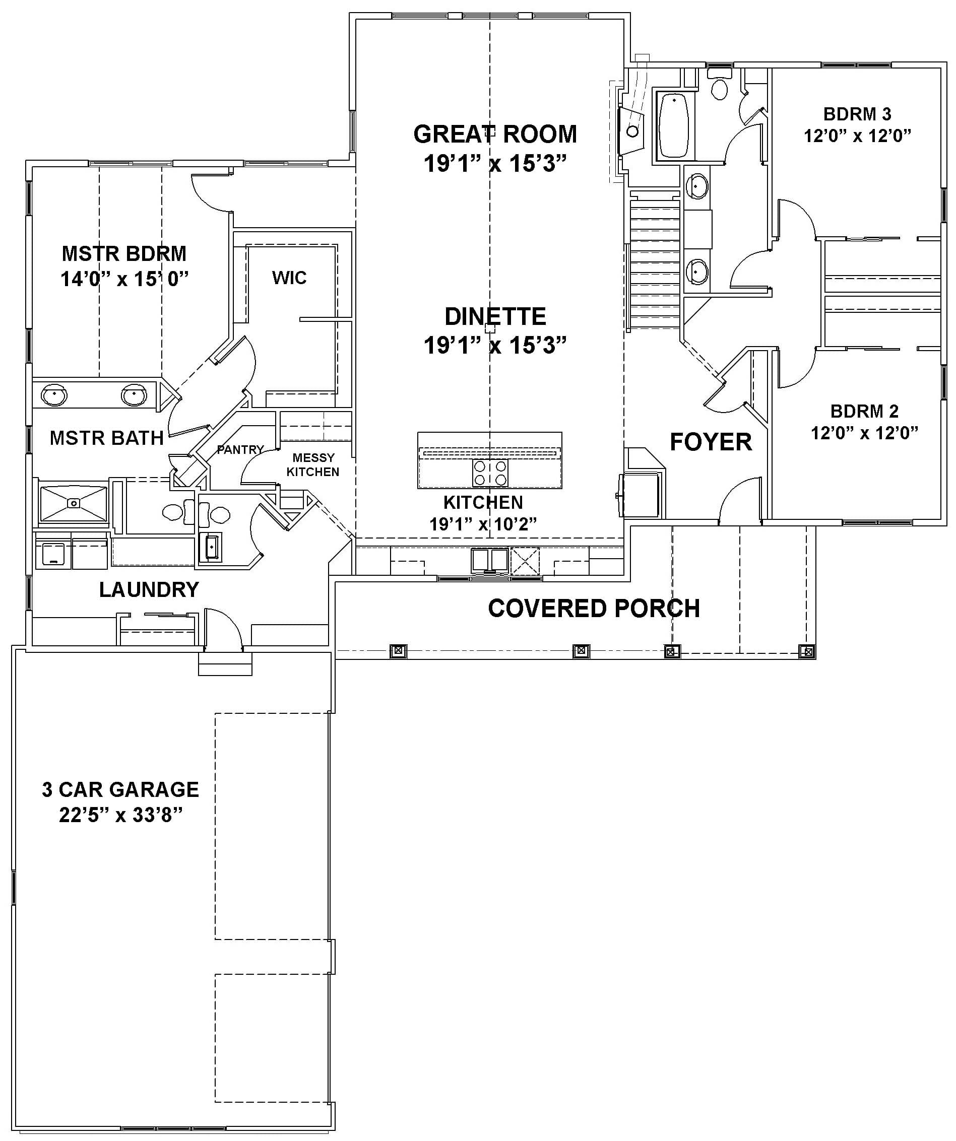
One notable upgrade to our 2021 Parade of Homes model is a stately canted garage. As you step inside The Harper, a soaring cathedral ceiling stretching the length of the home and a huge kitchen window that faces the front yard will immediately capture your attention. Its bright kitchen features a spacious island with colorful lower cabinets and rustic beam treatments overhead. Our signature “Demlang Messy Kitchen,” a twist on the traditional butler’s pantry, helps you stow away life’s little messes.
Adjacent to the dinette, the great room features a stone fireplace, rustic beams, and floor-to-ceiling windows. The 3.5-season living space gives you yet another cozy space for at least three bug-free seasons. What a bonus!
The master bedroom boasts a unique ceiling, double-sided walk-in closets, and patio door to the covered porch, which is sure to impress. The luxury bath is complete with a custom walk-in tile shower, matte black fixtures, dual sink vanity with quartz countertops, barn door mirrors, and more!
This gorgeous family home is rounded out by a finished lower level, complete with useful features like a home bar and office space for working from home.











































































































































