
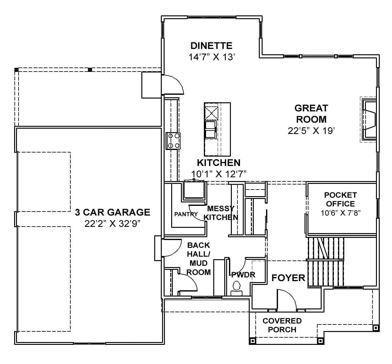
This beautiful two-story home features the amenities that today’s buyers are looking for, starting with a grand entry foyer. You are welcomed to the open concept great room and kitchen featuring 9’ high ceilings, a spacious dinette, and an enlarged kitchen island with quartz countertops perfect for entertaining.
Our latest design trend is our twist on a butler’s pantry, AKA the “messy kitchen.” This space is perfectly tucked away from the kitchen where you can keep your small appliances, prep for a party, or find a place to hide-away your other messes. The “messy kitchen” features a microwave, open shelving, and an abundance of countertop space.
As an extension of our kitchen you can take the party outside to our beautiful covered screen porch and garage bar… every guys dream! The garage is complete with epoxy painted floors, finished walls, and entertainment area with music.















































































