
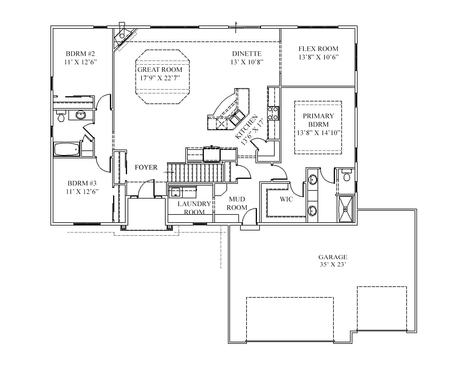
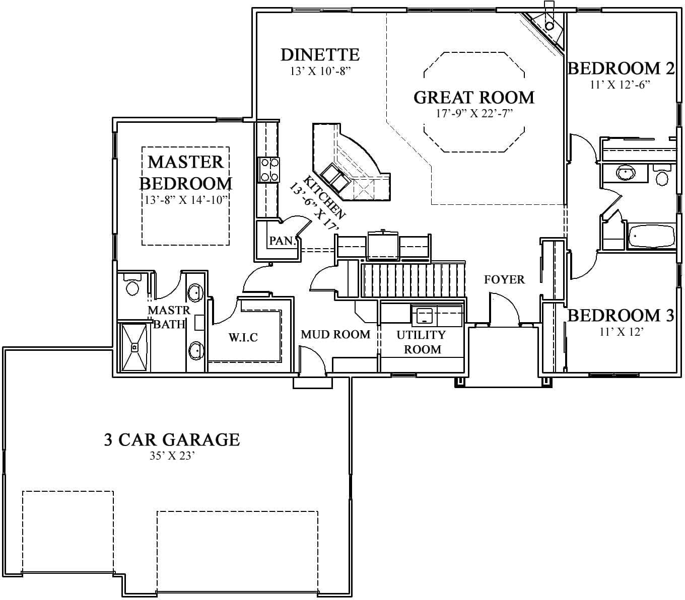
The Hadley is a 1,920 sq. ft. split-bedroom ranch featuring a convenient floor plan layout. This low maintenance design offers all the quality features of larger Demlang models in a compact package.
The master bedroom suite features a walk in closet and attached bathroom with his and hers sink. Both the master bedroom suite and the adjacent utility room lead into the kitchen area, the true heart and soul of The Hadley’s design.
Featuring a centrally located island with attached breakfast bar, The Hadley’s kitchen overlooks the dinette and great room, providing a central location for hosting guests and preparing meals. An attached pantry provides additional space for storage of food and supplies.
The guest bedroom suite lies across the great room, housing two bedrooms and a full bathroom.









































