What to Expect When You Build with Demlang
Curious about the home building process but don’t know where to start? From the outside, it can be a daunting process. That’s why we’ve broken it down into a series of easy-to-follow steps so you know exactly what to expect when you build a Demlang home. From start to finish, you’ll be working with a trusted home building partner dedicated to crafting a home that fits your wants and needs.
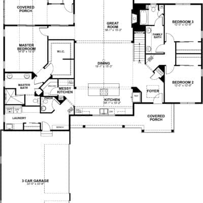
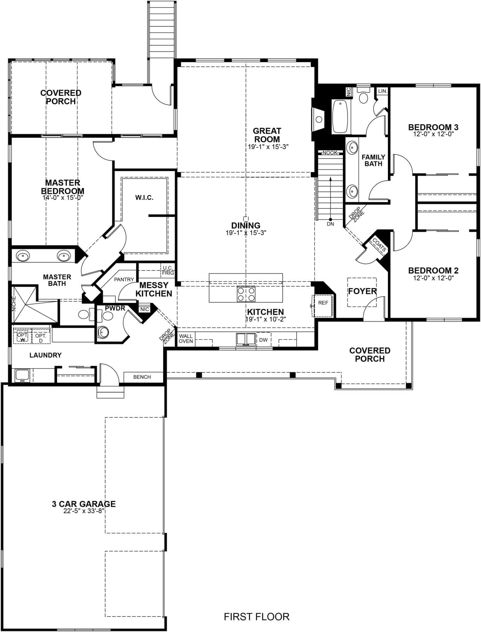
Floor Plan Selection & Customization
Your new home building journey starts here: with a customizable Demlang floor plan. By analyzing your lifestyle and lot, our team of licensed realtors will help you determine the floor plan that works best for you and discuss customizable options that fit your needs.
Lot Selection, Site Planning & Site Survey
Location, location, location. Whether you already have a lot or need help finding one, our New Construction Specialists will ensure you have the perfect spot for your future home. We’ll conduct a site survey to determine land suitability and home placement, as well as handle any site improvements such as grading, well, septic, and utility access, making the process simple for you.
Financing & Contracts
It’s everyone’s favorite part of the home building process: paperwork! We’ll help you get everything squared away and provide you with a contract outlining the inclusions and building specifications you can expect. We can also connect you with one of our lending partners should you need help in financing your new home.
Material Selections
Pick out your favorite backsplash tile, hardware, cabinetry, flooring, and more from our Design Gallery while our Selections Coordinator helps keep your project on budget. Our partner showrooms for specialty finishes, lighting fixtures and appliances give you a broad selection for your unique tastes and needs.
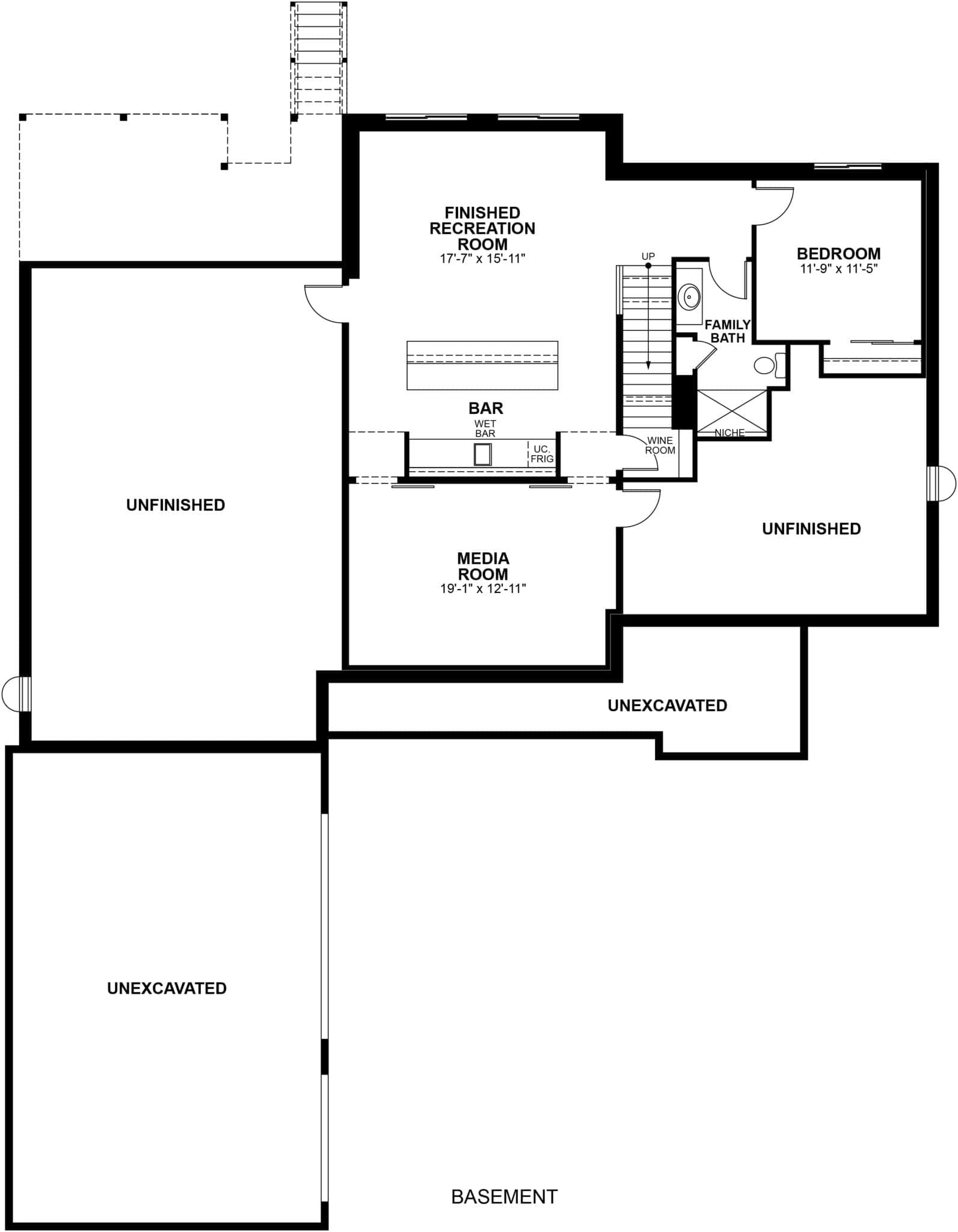
Excavation & Foundation
The physical construction of your home begins with a solid foundation. Based on the site survey, we excavate and set the footings for your home. We use poured concrete to form foundation walls.
Framing & Rough Carpentry
Things are starting to take shape — literally! After laying the foundation, we frame your home and set trusses. Structural components, flooring system, and truss design are expertly engineered using the latest building science.
Roofing, Windows & Siding
Once your home has been framed and rough construction is complete, we begin exterior construction to seal up the building envelope from environmental factors. We’ll wrap the home in Tyvek home wrap, lay subroofing and roofing shingles, hang siding, and install the windows ensuring proper flashing and taping techniques to protect from air and water leaks.
Rough Plumbing, Electrical, HVAC & Mechanicals
A home isn’t complete without mechanicals! At this stage, our master plumbers and skilled electricians ensure adherence to local building codes to make sure your home is comfortable and safe. With a focus on energy efficiency, our signature Demlang Energy Savings System begins here.
Insulation & Drywall
As we finish rough construction and the home passes mechanical inspections, we install insulation keeping energy efficiency in mind. A combination of batt insulation and spray foam is used, and drywall is hung, taped and mudded as the home begins to take its final form.
Cabinetry, Countertops & Finish Carpentry
With your hand-selected cabinets and countertops, your kitchen and bathrooms begin to take shape. We install your selected cabinets and perform an onsite measure to ensure countertops are an exact fit once installed. Millwork, trim, and other finish carpentry completes this phase.
Flooring
This is the stage where we install your hard surface flooring! With patience and diligence, we make sure your hardwood, tile, or laminate flooring of choice is installed to the highest standards. Hard surface flooring is covered as needed, or is able to be cleaned through remaining phases of construction while carpet is installed just prior to occupancy.
Hardware & Fixtures
During this step, we add finishing touches to the interior of your home and install the door and cabinetry hardware as well as the plumbing and lighting fixtures you have selected. It really brings the whole house together!
Painting & Staining
Give it a splash of color! Using your color selections, we prime and paint the millwork, doors, and walls of your home. Hardwood trims, shelving, fireplace mantles and other wood finishes are stained and varnished as well.
Clean, Walkthrough, Closing, Inspection & Occupancy
Once inspection is passed and final occupancy is issued, we take time to perform a construction cleanup before you move in. We’ll do a final walkthrough to make sure everything is up to our standards and educate you on the key components of your new home.
Warranty & Support
As you’re settling into your new Demlang home, enjoy a one-year warranty for your peace of mind. Contact us through the same cloud-based project management app that you used during the build — submitting a warranty or service request is simple!
Start Your New Build with Demlang Builders
As a trusted home builder, we’re there for you every step of the way. From helping you pick out the floor plan that fits your lifestyle, discussing paints and finishes, and answering any questions you have after you move in, our team goes beyond construction: we get to know you so we can build the house that’s right for your lifestyle. If you’re ready to start the home building process, contact one of our New Construction Specialists today!

































































































